| 価格 | 4,480万円値下がり ![]() |
||||||
|---|---|---|---|---|---|---|---|
| 所在地 | 埼玉県志木市幸町1丁目
この地域周辺の物件を見る |
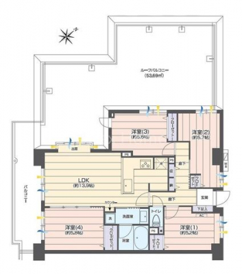
専有面積 | 79.83u | 間取り | 4LDK (LDK13.9/洋室5.8/洋室5.7/洋室5.6/洋室5.2) | ||
| 交通 | 東武東上線 志木/徒歩10分
東武東上線 柳瀬川/徒歩19分 |
管理費等 | 11,670円 | 修繕積立金 | 12,100円 | 所在階/階数 | 12階/地上13階建 | 築年月 | 1986年7月築 | バルコニー面積 | 66.9m² |
電話をかける(携帯・PHS可)
0120-979-668
「ホームページを見た」とお伝え下さい。
お問い合わせ番号をお伝えください
RHS-B00164-018496
| 特徴 |
|
|---|---|
| セールスコメント | ◇◇◇◇◇◇◇【物件特徴】◇◇◇◇◇◇◇◇ ★東武東上線「志木」駅徒歩10分 ★安心の新耐震物件・住宅ローン減税など利用可♪ ★総戸数247戸のビックコミュニティで管理体制良好! ★12階南西向きの角部屋で日当たり眺望通風とも良好です♪ ★53m2超の大型のルーフバルコニー付き! ★各居室にクローゼット完備の州の力の高いお部屋です! ★新規内装リノベーション実施+アフターサービス保証付き ★(株)リクルートコスモス(現コスモスイニシア)旧分譲×鹿島建設(株)施工 ★スキップフロアですがエレベーター停止階です♪ ★近隣にはスーパー(マルエツまで徒歩約5分)やコンビニ(セブンネット分)などの商業施設が多数ある便利な住環境です! 【弊社独自のビックキャンペーン実施中】 ■仲介手数料無料により約154万円もお得です■ ■ご契約者様にJCBギフト券10万円分プレゼント■ |
| 採光面 | 南西 | 取引態様 | 仲介 |
|---|---|---|---|
| 現況 | 空家 | 引渡し | 即時 |
| 総戸数 | 248戸 | 構造 | SRC造 |
| テラス面積 | - | 専用庭面積 | - |
| 駐車場 | - | 駐輪場 | - |
| 建物権利 | - | 土地権利 | 所有権 |
| 用途地域 | 第一種住居地域 - - | 管理態様 | 管理形態:委託(通勤) 管理組合:あり 管理会社:大和ライフネクスト(株) |
| 小学校区 | 志木市立志木第二小学校 (埼玉県志木市) この学区の他の物件を見る |
中学校区 | 志木第二中学校 (埼玉県志木市) この学区の他の物件を見る |
| 情報更新日 | 2025年11月10日 | 次回更新日 | 2025年11月24日 |
電話をかける(携帯・PHS可)
0120-979-668
「ホームページを見た」とお伝え下さい。
お問い合わせ番号をお伝えください
RHS-B00164-018496
| 年利率 | % |
||
|---|---|---|---|
| ボーナス払い | 返済年数 | ||
| 頭金 | 直接入力する | 万円 | |

毎月のご返済額 |
ボーナス(×年2回) |
物件価格4,480万円 |
電話でお問い合わせ
アイベックスホーム
|
電話をかける 0120-979-668 ※「ホームページを見た」とお伝えください。 |
お問い合わせ番号をお伝えください RHS-B00164-018496 |
|---|
TEL.0120-979-668
※不動産投資で電話営業されているアイデックス株式会社(新宿区)とは一切関わりございません。
〒 171-0014
豊島区池袋2丁目40-2 スペースG1 4F
営業時間:10:00〜20:00
定休日:火曜日・水曜日
Copyright (C) AIBEX HOME All Rights Reserved.
★志木駅徒歩10分★新耐震★管理体制良好★新規内装リノベーション★12階南西角部屋で日当たり眺望通風良好★53m2超のルーフバルコニー付き★仲介手数料無料★