| 価格 | 20,990万円値下がり ![]() |
||||||
|---|---|---|---|---|---|---|---|
| 所在地 | 東京都豊島区南池袋1丁目
この地域周辺の物件を見る |
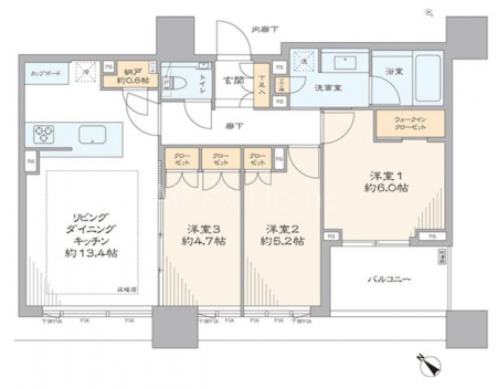
専有面積 | 68.03u | 間取り | 3LDK (LDK13.4/洋室6/洋室5.2/洋室4.7) | ||
| 交通 | JR山手線 池袋/徒歩6分
JR山手線 目白/徒歩9分 |
管理費等 | 24,990円 | 修繕積立金 | 20,670円 | 所在階/階数 | 23階/地上31階 地下1階建 | 築年月 | 2015年2月築 | バルコニー面積 | 5.64m² |
電話をかける(携帯・PHS可)
0120-979-668
「ホームページを見た」とお伝え下さい。
お問い合わせ番号をお伝えください
RHS-B00164-018948
| 特徴 |
|
|---|---|
| セールスコメント | ○○…*≪グランドミレーニア≫*…○○ ●池袋駅徒歩6分の好立地!目白駅へも徒歩9分! ●2015年築の築浅タワーマンション ●地震に強い免震構造 ●エントランス2か所とエレベーターのトリプルオートロック採用で安心のセキュリティ、24時間有人管理 ●高層階の23階部分!圧巻の眺望です!! ●専有面積68.03平米のゆとりのある3LDK ●新規内装リフォーム実施済/アフターサービス保証付 ●LD床暖房、食洗機、浄水、ディスポーザー、浴室乾燥暖房機など設備・仕様が充実〜 ●大切なペットとお住まい出来ます(飼育細則有) ☆★当社独自のサービス【仲介手数料無料】でご紹介します〜仲介手数料無料なら、約700万円の初期費用が削減できます☆★さらに!ご契約者様にJCBギフト券20万円プレゼント☆★当社営業担当全員有資格者!経験豊富なベテラン社員がご案内致します☆★当日のご案内もお気軽にご相談下さい☆ |
| 採光面 | 南西 | 取引態様 | 仲介 |
|---|---|---|---|
| 現況 | 空家 | 引渡し | 即時 |
| 総戸数 | 411戸 | 構造 | RC造 |
| テラス面積 | - | 専用庭面積 | - |
| 駐車場 | 有:50,000円/月 | 駐輪場 | - |
| 建物権利 | - | 土地権利 | 所有権 |
| 用途地域 | 商業地域 - - | 管理態様 | 管理形態:委託(常駐) 管理組合:あり 管理会社:住友不動産建物サービス株式会社 |
| 小学校区 | 豊島区立南池袋小学校 (東京都豊島区) この学区の他の物件を見る |
中学校区 | 千登世橋中学校 (東京都豊島区) この学区の他の物件を見る |
| 情報更新日 | 2026年04月13日 | 次回更新日 | 2026年04月27日 |
電話をかける(携帯・PHS可)
0120-979-668
「ホームページを見た」とお伝え下さい。
お問い合わせ番号をお伝えください
RHS-B00164-018948
| 年利率 | % |
||
|---|---|---|---|
| ボーナス払い | 返済年数 | ||
| 頭金 | 直接入力する | 万円 | |

毎月のご返済額 |
ボーナス(×年2回) |
物件価格20,990万円 |
![]() |
![]() |
豊島区南池袋1丁目
19800万円〜20990万円 |
電話でお問い合わせ
アイベックスホーム
|
電話をかける 0120-979-668 ※「ホームページを見た」とお伝えください。 |
お問い合わせ番号をお伝えください RHS-B00164-018948 |
|---|
TEL.0120-979-668
※不動産投資で電話営業されているアイデックス株式会社(新宿区)とは一切関わりございません。
〒 171-0014
豊島区池袋2丁目40-2 スペースG1 4F
営業時間:10:00〜20:00
定休日:火曜日・水曜日
Copyright (C) AIBEX HOME All Rights Reserved.
*2015年築*免震タワーマンション*トリプルオートロックで安心のセキュリティ*新規リフォーム実施*高層階23階につき圧巻の眺望です**仲介手数料無料対象物件**